ir al inicio

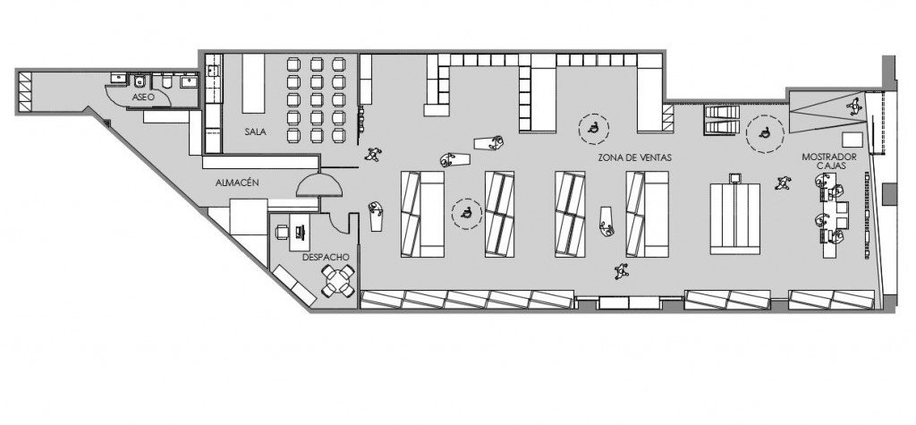
BIECOR ECOMARKET

EMPLAZAMIENTO / KOKAPENA: BIECOR-ENSANCHE Calle Tafalla,19. PAMPLONA-IRUÑA / BIECOR-LEZKAIRU Av. Cataluña, 4. PAMPLONA-IRUÑA

PROMOTOR / ERAGILEA: BIECOR NATURA S.L.

FECHA DEL PROYECTO / PROIEKTUEN DATA: BIECOR-ENSANCHE: Diciembre 2013 / BIECOR-LEZKAIRU: Junio 2019

FECHA FINAL OBRA / LAN BUKAEAREN DATA: BIECOR-ENSANCHE: Abril 2014 / BIECOR-LEZKAIRU: Octubre 2019

COMENTARIOS / IRUZKINAK:

ACCÉSIT PREMIOS DISEÑO INTERIOR 2018 organizado por el Colegio Oficial de Diseñadores de Interior / Decoradores de Navarra

«La experiencia para Biecor de conocer y trabajar junto al equipo de diseñadores y decoradores Garjon-Torres, ha sido realmente muy positiva. Su alta capacidad profesional junto a su mayor capacidad humana, ha hecho posible que un proyecto como el supermercado ecológico Biecor, sea una realidad con una personalidad propia y diferenciada, uniendo el buen gusto, la funcionalidad y creando el ambiente agradable y de disfrute que todo cliente quiere y necesita. Gracias Marian, gracias Fermín.»

Alfredo.

 

Con la dificultad que tiene abrir un negocio, pero ahí está la ilusión que conlleva hacerlo, Marian y Fermín consiguen que esa ilusión se multiplique y la dificultad disminuya hasta la tranquilidad, por su buen hacer, su profesionalidad y sobre todo por su capacidad humana. Gracias por todo.

Alfredo Abaurrea. Biecor ecomarket

BIECOR ECOMARKET

BIECOR-LEZKAIRU

BIECOR-ENSANCHE

PROYECTOS. PLANOS / VISTAS 3D