ir al inicio

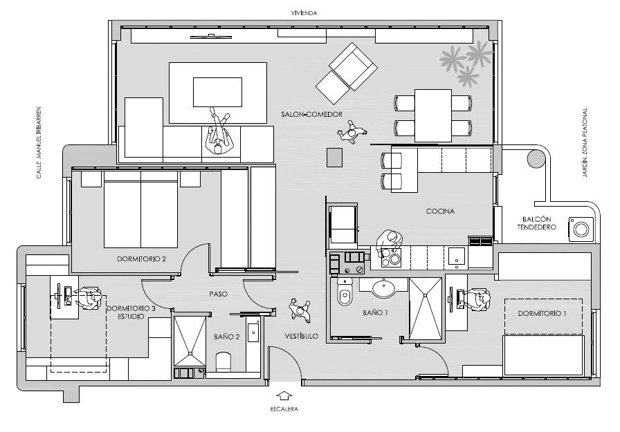
VIVIENDA EN MENDEBALDEA

EMPLAZAMIENTO / KOKAPENA: C/ MANUEL IRIBARREN, 28. MENDEBALDEA. PAMPLONA-IRUÑA

FECHA DEL PROYECTO / PROIEKTUEN DATA: AGOSTO 2015

FECHA FINAL OBRA / LAN BUKAEAREN DATA: DICIEMBRE 2015

VIVIENDA EN MENDEBALDEA

PLANOS / VISTAS 3D